Piso en venta en Pedralbes, Barcelona
Ver mapa975,000 €/venta
136 m2
3 dormitorios
3 baños
6ta planta
ascensor
jardín
terraza
balcón
garaje
trastero
🏡 Exclusivo Piso en Venta en Pedralbes - ¡Inversión con Rentabilidad Garantizada! 🌟
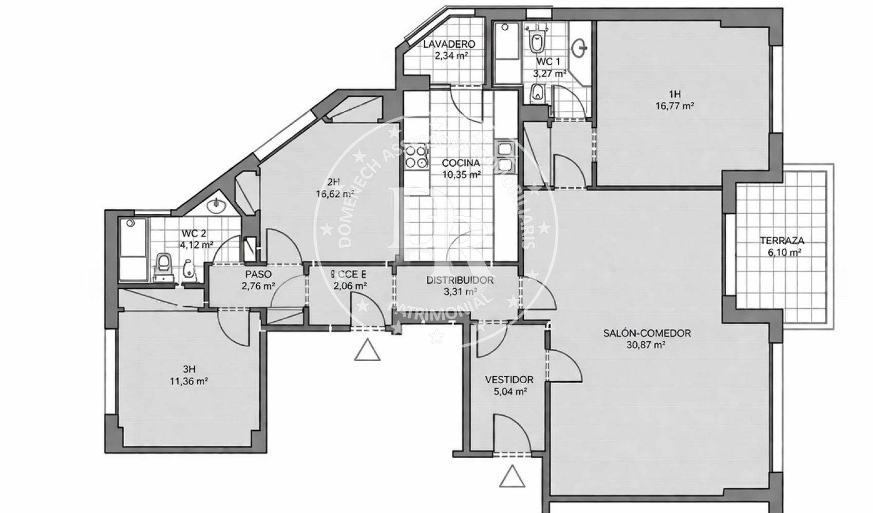
Descubre esta joya inmobiliaria ubicada en el prestigioso barrio de Pedralbes, a un paso del parque de Cervantes y con vistas inigualables al mar. Este piso exterior, situado en la planta 6ta, te ofrece una experiencia de vida inigualable con una superficie de 136m², inundado de luz natural.
Características Principales:
- 🛋️ Amplio Salón Comedor: Perfecto para recibir a tus invitados, con acceso directo a una terraza privada donde disfrutarás de unas vistas impresionantes al mar.
- 🛏️ 3 Habitaciones Dobles: Incluyendo una suite con vestidor, además de dos habitaciones con salida a un espacioso balcón.
- 🚿 3 Baños Completos: Diseñados para ofrecer el máximo confort y funcionalidad.
- 🍽️ Cocina Office: Equipado con habitación de plancha y lavadero, ideal para los amantes de la cocina.
- 🌿 Jardín Comunitario: Un oasis de paz dentro de la ciudad.
- 🚗 Parking: Incluye 2 plazas de parquing, asegurando comodidad y seguridad para tus vehículos.
- 🏢 Finca de Categoría: Con portero, 2 ascensores y trastero, garantizando una vida cómoda y sin preocupaciones.
Equipamiento Adicional:
- 🌟 Suelo de parquet de alta calidad.
- ❄️ Aire acondicionado central y calefacción, para tu máximo confort durante todo el año.
Oportunidad de Inversión:
Este piso se vende en nuda propiedad por 975,000€, con la particularidad de que el vendedor residirá en él durante 10 años, abonando al comprador 3,500€/mes. De esta cantidad, 2,000€ se consideran alquiler y 1,500€ se descuentan del precio de compra, resultando en un precio final de 795,000€ tras el periodo acordado. ¡Una oportunidad única para inversores inteligentes!
📍 Ubicación Privilegiada: A solo 2 minutos de la Diagonal y el Club de Polo, una zona exclusiva y altamente deseada.
No dejes pasar esta oportunidad de adquirir una propiedad excepcional con rentabilidad asegurada. ¡Contáctanos hoy mismo para más información y para agendar una visita! 📞✨
Descubre esta joya inmobiliaria ubicada en el prestigioso barrio de Pedralbes, a un paso del parque de Cervantes y con vistas inigualables al mar. Este piso exterior, situado en la planta 6ta, te ofrece una experiencia de vida inigualable con una superficie de 136m², inundado de luz natural.
Características Principales:
- 🛋️ Amplio Salón Comedor: Perfecto para recibir a tus invitados, con acceso directo a una terraza privada donde disfrutarás de unas vistas impresionantes al mar.
- 🛏️ 3 Habitaciones Dobles: Incluyendo una suite con vestidor, además de dos habitaciones con salida a un espacioso balcón.
- 🚿 3 Baños Completos: Diseñados para ofrecer el máximo confort y funcionalidad.
- 🍽️ Cocina Office: Equipado con habitación de plancha y lavadero, ideal para los amantes de la cocina.
- 🌿 Jardín Comunitario: Un oasis de paz dentro de la ciudad.
- 🚗 Parking: Incluye 2 plazas de parquing, asegurando comodidad y seguridad para tus vehículos.
- 🏢 Finca de Categoría: Con portero, 2 ascensores y trastero, garantizando una vida cómoda y sin preocupaciones.
Equipamiento Adicional:
- 🌟 Suelo de parquet de alta calidad.
- ❄️ Aire acondicionado central y calefacción, para tu máximo confort durante todo el año.
Oportunidad de Inversión:
Este piso se vende en nuda propiedad por 975,000€, con la particularidad de que el vendedor residirá en él durante 10 años, abonando al comprador 3,500€/mes. De esta cantidad, 2,000€ se consideran alquiler y 1,500€ se descuentan del precio de compra, resultando en un precio final de 795,000€ tras el periodo acordado. ¡Una oportunidad única para inversores inteligentes!
📍 Ubicación Privilegiada: A solo 2 minutos de la Diagonal y el Club de Polo, una zona exclusiva y altamente deseada.
No dejes pasar esta oportunidad de adquirir una propiedad excepcional con rentabilidad asegurada. ¡Contáctanos hoy mismo para más información y para agendar una visita! 📞✨
Características básicas
- y en buen estado de conservación
- - 3 baños completos
Edificio
- Finca con ascensor
- muy luminoso
Certificado energético
ESCALA DE LA CALIFICACIÓN ENERGÉTICA
Consumo de energía
kWh / m2 año
Emisiones
kg CO2 / m2 año
Estadísticas
Referencia
D1N21SVBCN
Profesional
Domenech Assessors